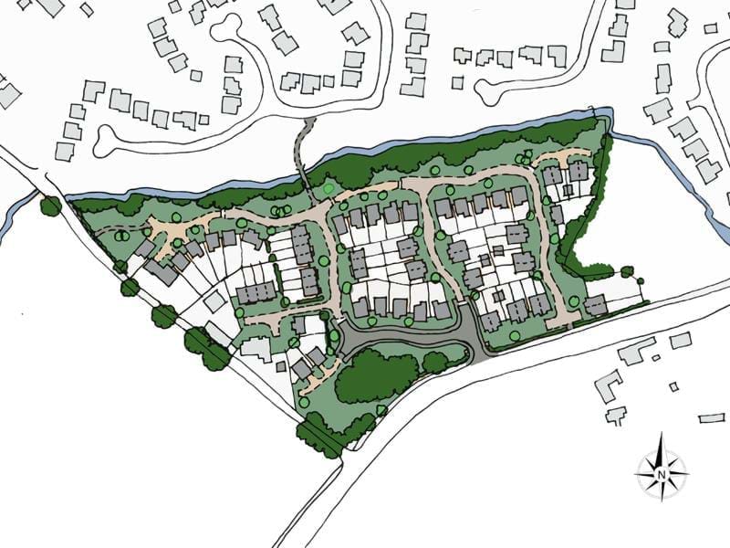
Kents Green

Renew Land Development Kents Green project, in summary;

  • 2.67ha.
  • 60 Units (42 OM dwellings & 18 AH dwellings)
  • Walking distance of The Dingles Primary School & Haslington Primary School
  • 4.6km from Crewe Town Centre
  • Cheshire East Council
  • Open-countryside development
  • Outside settlement boundary
  • Outline consent won via Appeal and High Court Challenge
  • Sold to Stewart Milne Homes Ltd
  • Reserve matters determined for 52 dwellings 2016
  • Construction underway with first completions in 2nd half of 2017

Location

Cheshire

No Of Units

60

Size

2.67ha.

Contact Renew Land about the Kents Green site

Get In Touch

By continuing to browse our site without changing your settings, you are agreeing to accept all cookies on the site. You can change your internet browser settings yourself at anytime. We use cookies to collect anonymous aggregated statistics to determine how this website is used in order to deliver a better user experience.

Read More