Hall Drive

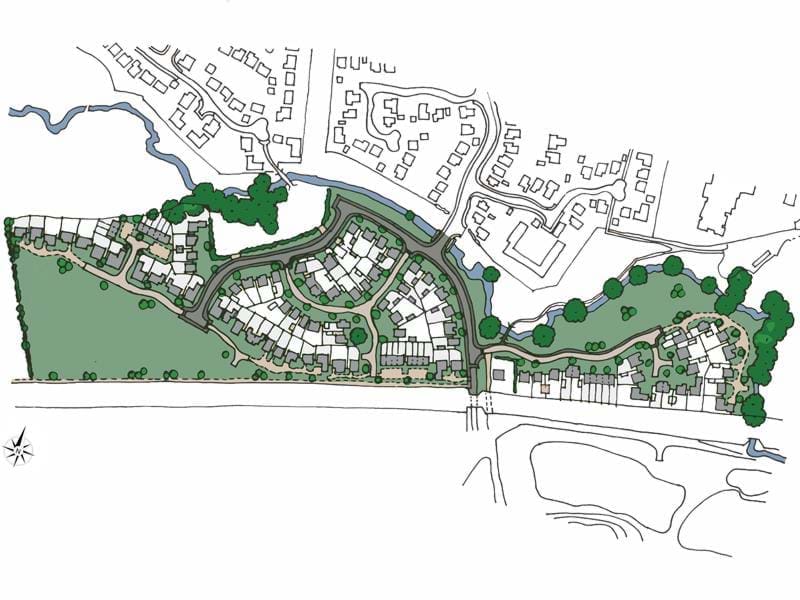
Renew Land Development Hall Drive project, in summary;

  • 6.07ha.
  • 129 Units
  • 90 x Open market dwellings
  • 39 x Affordable Dwellings
  • Walking distance of Alsager Town Centre (450m)
  • Cheshire East Council
  • Open-countryside development
  • Outside development boundary
  • Outline Planning Permission 2015
  • Full Detailed Planning Permission granted October 2015
  • Sold to Prospect Homes
  • Construction commenced 2016, first unit completions in Spring 2017
  • Final phase began early 2020

 

Location

Alsager

No Of Units

129

Size

6.07ha.

Contact Renew Land about the Hall Drive site

Get In Touch

By continuing to browse our site without changing your settings, you are agreeing to accept all cookies on the site. You can change your internet browser settings yourself at anytime. We use cookies to collect anonymous aggregated statistics to determine how this website is used in order to deliver a better user experience.

Read More