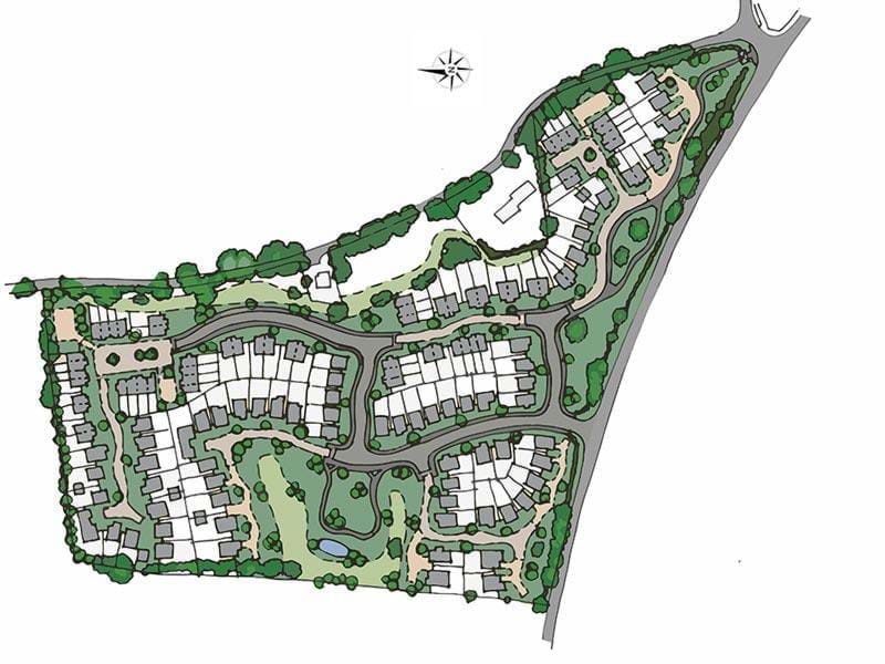
Tadgedale Quarry

Renew Land Development Tadgedale Quarry project, in summary;

  • 5.6ha.
  • Up to 128 units
  • 0.6 miles from Loggerheads Local Services/Centre
  • Newcastle under Lyme Borough Council
  • Area of Landscape Maintenance
  • Outside development boundary
  • Outline Planning Granted by Appeal March 2017
  • Signed S106
  • Application reference 15/00015/OUT
  • Reserved matters submitted

Location

Newcastle-under-Lyme

No Of Units

128

Size

5.6ha

Contact Renew Land about the Tadgedale Quarry site

Get In Touch

By continuing to browse our site without changing your settings, you are agreeing to accept all cookies on the site. You can change your internet browser settings yourself at anytime. We use cookies to collect anonymous aggregated statistics to determine how this website is used in order to deliver a better user experience.

Read More